Номер по Госреестру СИ: 94345-25
94345-25 Резервуар стальной горизонтальный цилиндрический
(РГ50 ((40)+(10)))
Назначение средства измерений:
Резервуар стальной горизонтальный цилиндрический РГ50 ((40)+(10)) (далее -резервуар) предназначен для измерений объема нефтепродуктов, а также для их приема, хранения и отпуска.

Внешний вид.
Резервуар стальной горизонтальный цилиндрический
Рисунок № 1

Внешний вид.
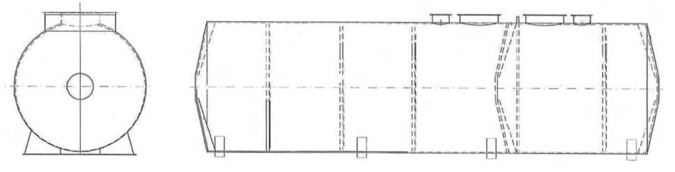
Резервуар стальной горизонтальный цилиндрический
Рисунок № 2

Внешний вид.
Резервуар стальной горизонтальный цилиндрический
Рисунок № 3
Знак утверждения типа
Знак утверждения типананосится на титульный лист паспорта резервуара типографским способом.
Сведения о методиках измерений
Сведения о методиках (методах) измерений приведены в пункте 8 паспорта на резервуар.Нормативные и технические документы
Нормативные документы, устанавливающие требования к средству измеренийПриказ Федерального агентства по техническому регулированию и метрологии от 26 сентября 2022 г. № 2356 «Об утверждении Государственной поверочной схемы для средств измерений массы и объема жидкости в потоке, объема жидкости и вместимости при статических измерениях, массового и объемного расходов жидкости».
ПравообладательЗакрытое акционерное общество «ТК 122 Эмз» (ЗАО «ТК 122 Эмз»)
ИНН 7805204056
Юридический адрес: 198216, г. Санкт-Петербург, пр-кт Ленинский, д. 131, лит. А, помещ. 6-Н
Испытательный центр
Общество с ограниченной ответственностью «МетроКонТ» (ООО «МетроКонТ»)Адрес места осуществления деятельности: 420036, Республика Татарстан, г. Казань, ул. Тэцевская, д. 4б, помещ. 1011
Юридический адрес: 420132, Республика Татарстан, г. Казань, ул. Адоратского, д. 39Б, оф. 51
Телефон: +7 9196969693
E-mail: trifonovua@mail.ru
Принцип действия резервуара основан на заполнении его нефтепродуктом до определенного уровня, соответствующего заданному значению объема.
Резервуар представляет собой горизонтально расположенный цилиндрический стальной двустенный сосуд с днищами, состоящий из двух секций. Секции разделены между собой перегородкой
Заполнение и выдача продукта осуществляется через приемно-раздаточные патрубки.
Заводской номер резервуара в виде цифрового обозначения, состоящий из арабских цифр, нанесен методом сублимации на маркировочную табличку резервуара. Маркировочная табличка крепится к люку резервуара (рисунок 1).
Резервуар РГ50 ((40)+(10)) с заводским номером 126 расположен на территории ААЗС № 324, ООО «Татнефть-АЗС-Северо-Запад» по адресу: г. Санкт-Петербург,
ул. Народная 100 А.
Эскиз общего вида резервуара приведен на рисунке 2. Горловины резервуара РГ50 ((40)+(10)) приведены на рисунке 3.
Нанесение знака поверки на средство измерений не предусмотрено.

Производитель:
ЗАО «ТК 122 ЭМЗ» С.-Петербург тел./факс: 464-64-00
Тип изделия РГ50 ((40)+(10)) Номер 126 Дата выпуска 2004 год Рабочее давление 0,04 МПа J Масса резервуара 9200 кгРисунок 1 - Маркировочная табличка резервуара

Рисунок 2 - Эскиз общего вида резервуара
Рисунок 3 - Горловины резервуара РГ50 ((40)1(10)) зав.№ 126
Пломбирование резервуара РГ50 ((40)+(10)) не предусмотрено.
Таблица 4 -
|
Наименование |
Обозначение |
Количество |
|
Резервуар стальной горизонтальный цилиндрический |
РГ50 ((40)+(10)) |
1 шт. |
|
Паспорт |
- |
1 экз. |
|
Градуировочная таблица |
- |
2 экз. |
Таблица 1 -
|
Наименование характеристики |
Значение |
|
Номинальная вместимость, м3 |
50 |
|
Номинальная вместимость секции №1, м3 |
40 |
|
Номинальная вместимость секции №2, м3 |
10 |
|
Пределы допускаемой относительной погрешности определения вместимости (объемный метод), % |
±0,25 |
Таблица 2 - Технические характеристики
|
Наименование характеристики |
Значение |
|
Условия эксплуатации: Температура окружающего воздуха, оС Атмосферное давление, кПа |
от -50 до +50 от 84,0 до 106,7 |
Таблица 3 - Показатели надежности
|
Наименование характеристики |
Значение |
|
Средний срок службы, лет, не менее |
20 |

