Номер по Госреестру СИ: 84909-22
84909-22 Резервуар стальной горизонтальный цилиндрический
(РГС-10)
Назначение средства измерений:
Резервуар стальной горизонтальный цилиндрический РГС-10 (далее - резервуар) предназначен для измерения объема нефти и нефтепродуктов, а также для их приема, хранения и отпуска.

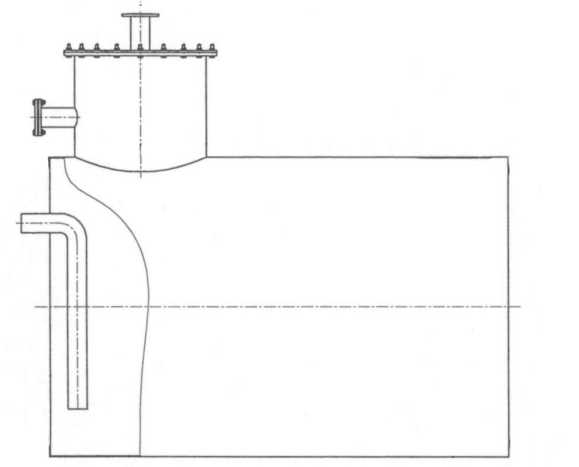
Внешний вид.
Резервуар стальной горизонтальный цилиндрический
Рисунок № 1

Внешний вид.
Резервуар стальной горизонтальный цилиндрический
Рисунок № 2
Знак утверждения типа
Знак утверждения типананосится на титульный лист паспорта резервуара типографским способом.
Сведения о методиках измерений
Сведения о методиках (методах) измерений приведены в пункте 8 паспорта на резервуар.Нормативные и технические документы
Нормативные документы, устанавливающие требования к резервуару стальному горизонтальному цилиндрическому РГС-10Приказ Росстандарта № 256 от 7 февраля 2018 г. «Об утверждении Государственной поверочной схемы для средств измерений массы и объема жидкости в потоке, объема жидкости и вместимости при статических измерениях, массового и объемного расходов жидкости»
Изготовитель
Открытое акционерное общество «Резметкон» (ОАО «Резметкон»)ИНН 6141004383
Адрес: 346882, Ростовская обл., г. Батайск, ул. Энгельса, 347
Телефон: +7 (86354) 7-08-83
Web-сайт: tdbrz.ru
E-mail: info@tdbrz.ru
Испытательный центр
Общество с ограниченной ответственностью «МетроКонТ» (ООО «МетроКонТ»)Адрес: 420132, г. Казань, ул. Адоратского, д. 39Б, офис 51
Телефон: +7 9372834420
Факс +7 (843) 515-00-21 E-mail: trifonovua@mail.ru
Тип резервуара - стальной горизонтальный цилиндрический, номинальной вместимостью 10 м3 подземного расположения.
Принцип действия резервуара основан на заполнении его нефтью и нефтепродуктом до определенного уровня, соответствующего заданному значению объема.
Резервуар представляет собой горизонтально расположенный цилиндрический стальной сосуд с днищами.
Заполнение и выдача продукта осуществляется через приемно-раздаточные устройства.
Заводской номер наносится на горловину резервуара.
Резервуар РГС-10 с заводским номером 1Н2.7 расположен по адресу: 461622, Россия, Оренбургская область, Бугурусланский район, с. Старое Тюрино, ЛПДС «Тюрино-ПП», Туймазинское НУ АО «Транснефть - Урал».
Общий вид резервуара РГС-10 представлен на рисунках 1, 2.
Нанесение знака поверки на средство измерений не предусмотрено.
Л
Рисунок 1 - Общий вид резервуара РГС-10
Рисунок 2 - Общий вид эскиза резервуара РГС-10
Пломбирование резервуара РГС-10 не предусмотрено.
Таблица 3 -
|
Наименование |
Обозначение |
Количество |
|
Резервуар стальной горизонтальный цилиндрический |
РГС-10 |
1 шт. |
|
Паспорт |
- |
1 экз. |
|
Градуировочная таблица |
- |
1 экз. |
Таблица 1 - Метрологические характеристики
|
Наименование характеристики |
Значение |
|
Номинальная вместимость, м3 |
10 |
|
Пределы допускаемой относительной погрешности определения вместимости (объёмный метод), % |
±0,25 |
Таблица 2 - Основные технические характеристики
|
Наименование характеристики |
Значение |
|
Условия эксплуатации: | |
|
Температура окружающего воздуха, оС |
от -50 до +50 |
|
Атмосферное давление, кПа |
от 84,0 до 106,7 |
|
Средний срок службы, лет, не менее |
30 |

