Номер по Госреестру СИ: 94000-24
94000-24 Резервуар стальной горизонтальный цилиндрический
(ЕП-63-3000-1100-А-С-У1)
Назначение средства измерений:
Резервуар стальной горизонтальный цилиндрический ЕП-63-3000-1100-А-С-У1 (далее - резервуар) предназначен для измерения объема нефти и нефтепродуктов, а также для их приема, хранения и отпуска.

Внешний вид.
Резервуар стальной горизонтальный цилиндрический
Рисунок № 1

Внешний вид.
Резервуар стальной горизонтальный цилиндрический
Рисунок № 2

Внешний вид.
Резервуар стальной горизонтальный цилиндрический
Рисунок № 3
Знак утверждения типа
Знак утверждения типананосится на титульный лист паспорта резервуара типографским способом.
Сведения о методиках измерений
Сведения о методиках (методах) измеренийприведены в разделе 2.2 паспорта «Данные о методах измерений, других испытаниях и исследованиях».
Нормативные и технические документы
Нормативные документы, устанавливающие требования к средствам измеренийПриказ Федерального агентства по техническому регулированию и метрологии от 26 сентября 2022 г. № 2356 «Об утверждении Государственной поверочной схемы для средств измерений массы и объема жидкости в потоке, объема жидкости и вместимости при статических измерениях, массового и объемного расходов жидкости».
ПравообладательАкционерное общество «Транснефть - Дружба» Филиал Пензенского районного управления (филиал ПРУ АО «Транснефть - Дружба»)
ИНН 3235002178
Адрес юридического лица: 241020, Брянская обл., г. Брянск, ул. Уральская, д. 113 Телефон: (8464) 98-59-12/ (8464) 98-59-22
E-mail: srnpu_aup_delo@brn.transneft.ru
Изготовитель
ответственностью«Уралспецмаш»
Общество с ограниченной
(ООО «Уралспецмаш»)
ИНН 5916022788
Адрес юридического лица: 614012, Пермский край, г. Пермь, ул. Карпинского, д. 99, кв. 201
Адрес места осуществления деятельности: 617065, Пермский край, г. Краснокамск, ул. Шоссейная, д. 43
Телефон: +7 (342) 258-08-52
E-mail: mail@uralrezerv.com
Web-сайт: uralrezerv.com
Испытательный центр
Федеральное бюджетное учреждение «Государственный региональный центр стандартизации, метрологии и испытаний в Ульяновской области» (ФБУ «Ульяновский ЦСМ»)Адрес: 432002, Ульяновская обл., г. Ульяновск, ул. Урицкого, д. 13
Телефон/факс: (89372)753737, (8422) 43-52-35
E-mail: csm@ulcsm.ru
Web-сайт: http://ulcsm.ru
Правообладатель
Акционерное общество «Транснефть - Дружба» Филиал Пензенского районного управления (филиал ПРУ АО «Транснефть - Дружба»)ИНН 3235002178
Адрес юридического лица: 241020, Брянская обл., г. Брянск, ул. Уральская, д. 113 Телефон: (8464) 98-59-12/ (8464) 98-59-22
E-mail: srnpu_aup_delo@brn.transneft.ru
Принцип действия резервуара основан на заполнении его нефтью или нефтепродуктом до определенного уровня, соответствующего заданному значению объема (согласно градуировочной таблице).
Тип резервуара - стальной горизонтальный цилиндрический, номинальной вместимостью 63 м3, подземного расположения.
Резервуар представляет собой горизонтально расположенный цилиндрический стальной сосуд, с днищами, состоящий из одной секции, оборудованные люками и приемно-раздаточными парубками. Заполнение и выдача продукта осуществляется через приемно-раздаточные патрубки.
Резервуар стальной горизонтальный цилиндрический ЕП-63-3000-1100-А-С-У1 с заводским номером 83.05.20 расположен на территории ЛПДС «Клин» АО «Транснефть - Дружба» по адресу: 433840, Российская Федерация, Ульяновская область, Николаевский район, село Канадей.
Заводской номер резервуара в виде цифрового обозначения, состоящий из арабских цифр наносятся методом гравировки на маркировочную табличку резервуара (рисунок 1), закрепленную на крышку люка резервуара.
Фотография горловины и заводского номера резервуара представлена на рисунке 1.
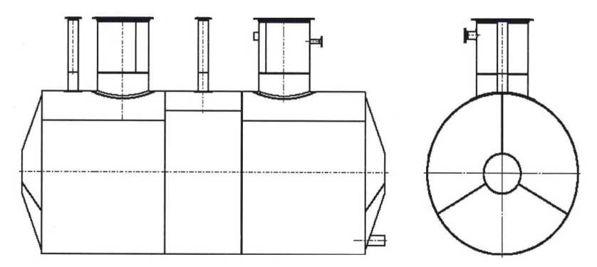
Эскиз резервуара представлен на рисунке 2. Фотография горловин и измерительных люков приведена на рисунке 3.
Нанесение знака поверки на средство измерений не предусмотрено.
Пломбирование резервуара не предусмотрено.
Место нанесения заводского номера
Рисунок 1 - Маркировочная табличка резервуара стального горизонтального цилиндрического ЕП-63-3000-1100-А-С-У1 с местом нанесения заводского номера
Рисунок 2 - Эскиз общего вида резервуара стального горизонтального цилиндрического ЕП-63-3000-1100-А-С-У1
Рисунок 3 - Горловина и измерительный люк резервуара стального горизонтального цилиндрического ЕП-63-3000-1100-А-С-У1
Основные метрологические и технические характеристики и показатели надежности резервуара приведены в таблицах 1 и 2.
Таблица 1 - Основные метрологические и технические характеристики
|
Наименование характеристики |
Значение |
|
Номинальная вместимость, м3 |
63 |
|
Пределы допускаемой относительной погрешности определения вместимости (объемный метод), % |
± 0,25 |
|
Условия эксплуатации:
|
от - 42 до + 40 от 84,0 до 106,7 |
Таблица 2 - Показатели надежности
|
Наименование характеристики |
Значение |
|
Средний срок службы, лет, не менее |
30 |

