Номер по Госреестру СИ: 91670-24
91670-24 Резервуары горизонтальные стальные
(РГСП)
Назначение средства измерений:
Резервуары горизонтальные стальные РГСП (далее - резервуары) предназначены для измерений объема нефтепродуктов, а также для их приема, хранения и отпуска.

Внешний вид.
Резервуары горизонтальные стальные
Рисунок № 1

Внешний вид.
Резервуары горизонтальные стальные
Рисунок № 2

Внешний вид.
Резервуары горизонтальные стальные
Рисунок № 3

Внешний вид.
Резервуары горизонтальные стальные
Рисунок № 4

Внешний вид.
Резервуары горизонтальные стальные
Рисунок № 5

Внешний вид.
Резервуары горизонтальные стальные
Рисунок № 6

Внешний вид.
Резервуары горизонтальные стальные
Рисунок № 7

Внешний вид.
Резервуары горизонтальные стальные
Рисунок № 8

Внешний вид.
Резервуары горизонтальные стальные
Рисунок № 9

Внешний вид.
Резервуары горизонтальные стальные
Рисунок № 10
Знак утверждения типа
Знак утверждения типананосится на титульный лист паспорта резервуара типографским способом.
Сведения о методиках измерений
Сведения о методиках (методах) измерений
приведены в разделе 9 «Порядок работы» паспорта.
Нормативные и технические документы
Нормативные документы, устанавливающие требования к средству измерений
Приказ Федерального агентства по техническому регулированию и метрологии от 26 сентября 2022 г. № 2356 «Об утверждении Государственной поверочной схемы для средств измерений массы и объема жидкости в потоке, объема жидкости и вместимости при статических измерениях, массового и объемного расходов жидкости».
Правообладатель
Войсковая Часть 6716
ИНН 4703011010
Юридический адрес: 188695, Ленинградская обл., Всеволожский р-н, д. Лемболово, д. 2
Изготовитель
Общество с ограниченной ответственностью «Компания Технострой»(ООО «Компания Технострой»)
ИНН 4027063380
Адрес: 248000, Калужская обл., г. Калуга, ул. Достоевского, д. 25 Телефон: +7 (4842) 79-00-63
E-mail: teplokaluga@list.ru
Испытательный центр
Всероссийский научно-исследовательский институт расходометрии - филиал Федерального государственного унитарного предприятия «Всероссийский научноисследовательский институт метрологии имени Д.И.Менделеева» (ВНИИР - филиал ФГУП «ВНИИМ им. Д.И.Менделеева»)Адрес места осуществления деятельности: 420088, Республика Татарстан, г. Казань, ул. 2-я Азинская, 7 «а»
Юридический адрес: 190005, г. Санкт-Петербург, Московский пр-кт, д. 19
Телефон/ факс: +7 (843) 272-70-62/(843) 272-00-32
Web-сайт: vniir.org
E-mail: office@vniir.org
Принцип действия резервуаров основан на заполнении их нефтепродуктом до произвольных уровней, соответствующих определенным объемам (вместимостям), приведенных в градуировочной таблице резервуара.
Резервуары представляют собой горизонтально установленные стальные
односекционные сосуды цилиндрической формы с днищами.
Заполнение и выдача продукта осуществляется через приемно-раздаточные устройства.
Установка резервуаров РГС - подземная.
Резервуары изготовлены в следующих модификациях: РГСП-4 с заводскими номерами 0074-20, 0075-20, 0076-20, 0077-20, 0078-20, РГСП-10 с заводскими номерами 0069-20, 0070-20, 0071-20, РГСП-50 с заводскими номерами 0072-20, 0073-20.
Заводские номера резервуаров в виде цифрового обозначения, состоящие из арабских цифр, нанесены каплеструйным методом на маркировочные таблички резервуаров (рисунки 1, 2, 3). Таблички крепятся крышкам горловин резервуаров.
Резервуары РГСП-4 с заводскими номерами 0074-20, 0075-20, 0076-20, 0077-20, 0078-20, РГСП-10 с заводскими номерами 0069-20, 0070-20, 0071-20, РГСП-50 с заводскими номерами 0072-20, 0073-20 расположены по адресу: 188695, Ленинградская обл., Всеволожский р-н, д. Лемболово, д. 2.
Эскиз общего вида резервуаров приведен на рисунках 7, 8, 9. Фотографии горловин и измерительных люков приведены на рисунках 4, 5, 6.
Нанесение знака поверки на средство измерений не предусмотрено.
mtjt
Емкость РГСГМ noJ
И0,'2019П
5м»йд:»пя *t р»б&-ап ср*Л* РвСсче* дийтенн* М”а Пробное давление МП»
Рдобгнм 1вммРр*ПР» с ,
Омястммэсть в ри&счем икто»мн* м
Мэсаа. «г
Год О****** ___ ■ - .-, г
ООО -комп.- гвипг». «
„п (<4в*2|7О-О(1*ЬЫ
Е..К
ЬС«ОИ
П-4 поз.__
110iW9 П
эа6очйй среда Рабочее дййлоине, МПа Пробное давление. МПа р-чЬтнаи темпервгурв. X

Ьмгсстъ РГСП-4 лох___ _ V4.0 ы
11Ш20ЮП
Ребочм среда р^Мчмм даыгмнне. МП»
Прений давленяв. МГм
Рм>4*нвч ••’нгирйгура,
гсаленя
0076 20 I
О>рлб010»иьи мосла I °.Cr I
магма II
ЭД |
*' *
МТД7
2020 }1
►л-оиро** г Kan^,yRiip»;ToeecMin).ab
1уП.8<4542)70-£»63Л4
Е-Л1О1 д,;др>отОЬсЬ',дигоуЫкда-^

|
Г* Г масть РГСЛАПМ____ • 1Й70И П |
V*Pm‘ |
|
ИЛЛ I | |
|
ГМУг4*<»Ма ЛгрвГс’*»»»" | |
|
РЛ>« дмкгаямМПе | |
|
Пр«6»эв мв •••*• М"а |
'•"** 1 |
|
Иас*е*м4» ■•к»т»ж *С | |
|
Ныг> гммсв» • ■ |
• |
|
U»X-» <т | |
|
ГС£ UMittare*»* |
_ |
|
СОЗ Тем*»»* ЦиДжстмя.яЖ J* 1 | |
|
1.г | |
|
Г-те» л^*»ч>«ме»в»е«8 *>•••«-• |
vwteMMMg*** J |
Рисунок 1 - Маркировочные таблички РГСП-4
|
Еивость РГСП-W па»___ 1 11а*201*П |
_ 710,0 м £ |
|
Г 3«wir>-«-M * |
«СйЗ-Ш I |
|
1 °i<'o.a* сред» |
Ам;«Ы»ьМ -’»• | |
|
1 Г’яГо-ие лвягнмем. МП» |
0fl> |
|
I Гробтое дмгм’ме МП» |
*»»*►> I |
|
1 Ртвс'Мтнм температура. t |
W I |
|
I Вместмиэстъ в хлЛпяям состав»*»», м |
10 |
|
1 Мяпсд, а* |
1567.П |
|
Год иэготхжн»**** |
2020 J |
|
ООО Чош1ми« Tewocrpwf > Калуга |
)П 25 |
|
тел 814842 |У0-Ш-ба<М | |
|
Е-тпвМ dogwtrGtw^noafcuy.kibp |
w*w lap пт J |

Еммхгь РГСП-10 поз__
___________________11012019 П
Заосдсон N» Рабочая среда
Рабочее ДййЛйкме, МПа
|
Пробное давление МЛэ |
ЫДЛЛ1 |
|
Расчетная тмёлорапра *С |
90 |
|
Вместимость а рабочем состоящей, и |
io |
|
Масса «т |
1557 7} |
|
Год ИЭЮТ0в1*НИЯ |
2020 |
|
ООО ’Компаний Тсвнострой* г Калита, ул .Достоевского, 25 | |
|
т»л 9|4.М2)7000-в31в< | |
|
| F--nn dogp.»gtecbno«1roT.k»lu8» ы »•» |
lepMeluja rj J |
|
Рампсть РГСП-10 поз. 110Л018П |
V10.0 м‘ |
|
Щодосой М |
0071-20 |
|
Рйбсчая среде |
Аварийны* спив |
|
Реб« '•** давление, МПа |
0.07 |
|
Пробное двв’тйнио, МГ1а |
наги» |
|
Расн*'няА температура. *С |
90 |
|
Омм счесть а рабочем сосго**** у ' |
10 |
|
МЛ2С0, »т |
1557.73 |
|
Гг.п ииптлАланил |
2020 |
|
ЭОС Хомпяиия Тежнострой*. * Калуга, ул Досто»вэх«*и 25 | |
|
т«л 8|4в«)70-00-ВМИ | |
|
E -mail 0>9очк>гв»*сПно«4г0у kaluga ги |
loplnkaXjga ти |
Рисунок 2 - Маркировочные таблички РГСП-10
Заводской №
Рабочая среда
Рабочее давление, МПа
Пробное давление, МПа Расчетная температура, "С Вместимость в рабочем состоянии Масса, кг
Год изготовления___
Емкость РГСП-50 поз.__
110/2019 П
ООО "Компания Технострой". г.Капуга. ул .Достоевского, 25 тел. 8(4842)70-00-63/64
E-mail: dogovor@technostroy.kaluga.ru. wwv.-teplokaluga.ru

Емкость РГСП-50 поз.___
110/2019 П
Заводской Nt
Рабочая среда
Рабочее давление. МПа
Пробное давление. МПа
Расчётная температура, 'С Вместимость в рабочем состоянии, м Масса, кг
Год изготовления
0073-20
Аварийный спив
0.07
налив
90
50
5030,72
2020
ООО "Компания Технострой". г.Капуга. ул.Достоевского, 25 I тел. 8(4842)70-00-63/64
E-mail: dogovor@technostroy.kaluga.ru. www teplokaluga.ru \
'---------■
Рисунок 3 - Маркировочные таблички РГСП-50
•*
Рисунок 4 - Горловины и измерительные люки резервуаров РГСП-4
Рисунок 5 - Горловины и измерительные люки резервуаров РГСП-10
Рисунок 6 - Горловины и измерительные люки резервуаров РГСП-50
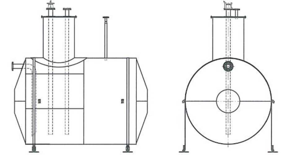
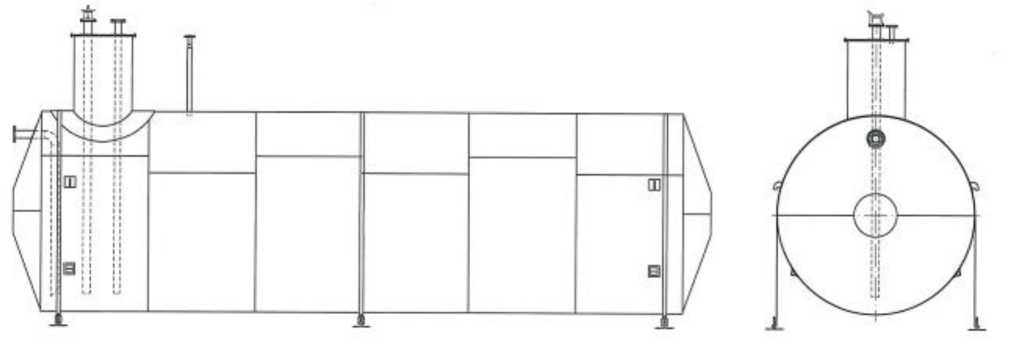
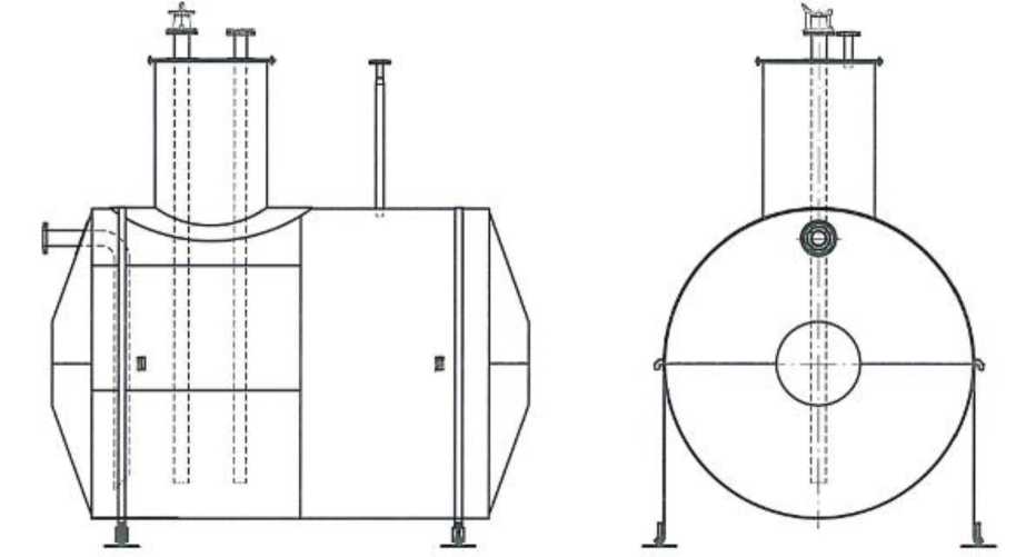
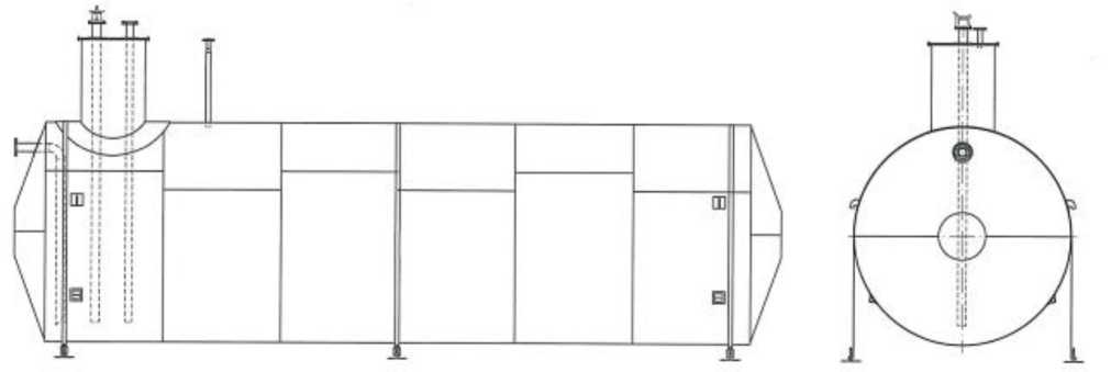
Рисунок 7 - Эскиз общего вида резервуаров РГСП-4

Рисунок 8 - Эскиз общего вида резервуаров РГСП-10
Рисунок 9 - Эскиз общего вида резервуаров РГСП-50 Пломбирование резервуара РГСП не предусмотрено.
Таблица 3 -
|
Наименование |
Обозначение |
Количество |
|
Резервуар горизонтальный стальной |
РГСП-4 |
1 шт. |
|
Паспорт |
- |
1 шт. |
|
Градуировочная таблица |
- |
1 шт. |
|
Резервуар горизонтальный стальной |
РГСП-10 |
1 шт. |
|
Паспорт |
- |
1 шт. |
|
Градуировочная таблица |
- |
1 шт. |
|
Резервуар горизонтальный стальной |
РГСП-50 |
1 шт. |
|
Паспорт |
- |
1 шт. |
|
Градуировочная таблица |
- |
1 шт. |
Таблица 1 - Метрологические характеристики
|
Наименование характеристики |
Значение | ||
|
РГСП-4 |
РГСП-10 |
РГСП-50 | |
|
Номинальная вместимость, м3 |
4 |
10 |
50 |
|
Пределы допускаемой относительной погрешности определения вместимости (объемный метод), % |
±0,25 | ||
Таблица 2 - Основные технические характеристики
|
Наименование характеристики |
Значение |
|
Условия эксплуатации: Температура окружающего воздуха, оС Атмосферное давление, кПа |
от -32 до +40 от 84,0 до 106,7 |
|
Средний срок службы, лет, не менее |
20 |

