Номер по Госреестру СИ: 88792-23
88792-23 Резервуары стальные горизонтальные цилиндрические
(РГС)
Назначение средства измерений:
Резервуары стальные горизонтальные цилиндрические РГС (далее - резервуары) предназначены для измерений объема нефти и нефтепродуктов, а также для их приема, хранения и отпуска.

Внешний вид.
Резервуары стальные горизонтальные цилиндрические
Рисунок № 1

Внешний вид.
Резервуары стальные горизонтальные цилиндрические
Рисунок № 2

Внешний вид.
Резервуары стальные горизонтальные цилиндрические
Рисунок № 3

Внешний вид.
Резервуары стальные горизонтальные цилиндрические
Рисунок № 4

Внешний вид.
Резервуары стальные горизонтальные цилиндрические
Рисунок № 5

Внешний вид.
Резервуары стальные горизонтальные цилиндрические
Рисунок № 6

Внешний вид.
Резервуары стальные горизонтальные цилиндрические
Рисунок № 7

Внешний вид.
Резервуары стальные горизонтальные цилиндрические
Рисунок № 8

Внешний вид.
Резервуары стальные горизонтальные цилиндрические
Рисунок № 9

Внешний вид.
Резервуары стальные горизонтальные цилиндрические
Рисунок № 10
Знак утверждения типа
Знак утверждения типананосится на титульный лист паспорта резервуаров типографским способом.
Сведения о методиках измерений
Сведения о методиках (методах) измерений
приведены в разделе 9 паспорта «Данные о методах измерений, других испытаниях и исследованиях».
Нормативные и технические документы
Нормативные документы, устанавливающие требования к средствам измеренийПриказ Федерального агентства по техническому регулированию и метрологии от 26 сентября 2022 г. № 2356 «Об утверждении Государственной поверочной схемы для средств измерений массы и объема жидкости в потоке, объема жидкости и вместимости при статических измерениях, массового и объемного расходов жидкости».
Правообладатель
Общество с ограниченной ответственностью «Димитровград-нефтемаш»
(ООО «Димитровград-нефтемаш»)
ИНН 7329018332
Адрес: 433504, Ульяновская обл., г. Димитровград, ул. Промышленная, д. 54Б
Телефон: +7 (84235) 6-94-02
E-mail: buh-dnm@bk.ru
Изготовитель
Общество с ограниченной ответственностью «Димитровград-нефтемаш»(ООО «Димитровград-нефтемаш»)
ИНН 7329018332
Адрес: 433504, Ульяновская обл., г. Димитровград, ул. Промышленная, д. 54Б Телефон: +7 (84235) 6-94-02
E-mail: buh-dnm@bk.ru
Испытательный центр
центрФедеральное бюджетное учреждение «Государственный региональный стандартизации, метрологии и испытаний в Ульяновской области» (ФБУ «Ульяновский ЦСМ»)
Адрес: 432002, г. Ульяновск, ул. Урицкого, д. 13
Телефон/факс: (89372)753737, (8422) 43-52-35
Web-сайт: http://ulcsm.ru
E-mail: csm@ulcsm.ru
Правообладатель
Общество с ограниченной ответственностью «Димитровград-нефтемаш»
(ООО «Димитровград-нефтемаш»)
ИНН 7329018332
Адрес: 433504, Ульяновская обл., г. Димитровград, ул. Промышленная, д. 54Б
Телефон: +7 (84235) 6-94-02
E-mail: buh-dnm@bk.ru
Принцип действия резервуаров основан на заполнении их нефтью или нефтепродуктом до определенного уровня, соответствующего заданному значению объема (согласно градуировочной таблице).
Тип резервуаров - стальные горизонтальные цилиндрические, номинальной вместимостью 25 м3, 63 м3, 200 м3, подземного размещения.
Резервуары стальные горизонтальные цилиндрические РГС изготовлены в следующих модификациях: РГС-25, РГС-63, РГС-200 в зависимости от вместимости.
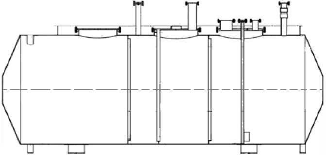
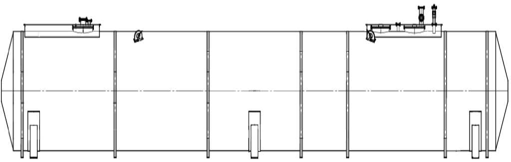
Резервуары представляют собой горизонтально расположенные цилиндрические стальные сосуды, с днищами, состоящие из одной секции, оборудованные люками и приемнораздаточными парубками. Заполнение и выдача продукта осуществляется через приемнораздаточные патрубки.
Резервуары стальные горизонтальные цилиндрические РГС расположены на территории Кемеровской нефтебазы ООО «Газпромнефть Терминал», Кемеровская область, г. Кемерово, ул. Пригородная, 8.
Заводские номера резервуаров в виде цифрового обозначения, состоящие из арабских цифр наносятся аэрографическим способом на крышки люков резервуаров.
Фотографии горловин и заводский номеров резервуаров стальных горизонтальных цилиндрических РГС, модификации РГС-25 с зав. №№ 1233, 1234, 1235 представлены на рисунке 1.
Фотографии горловин и заводский номеров резервуаров стальных горизонтальных цилиндрических РГС, модификации РГС-25 с зав. №№ 1236, 1237 представлены на рисунке 2.
Фотография горловины и заводского номера резервуара стального горизонтального цилиндрического РГС, модификации РГС-63 с зав. № 1238 представлена на рисунке 3.
Фотография горловины и заводского номера резервуара стального горизонтального цилиндрического РГС, модификации РГС-63 с зав. № 1239 представлена на рисунке 4.
Фотография горловины и заводского номера резервуара стального горизонтального цилиндрического РГС, модификации РГС-200 с зав. № 1240 представлена на рисунке 5.
Эскиз резервуаров стальных горизонтальных цилиндрических РГС, модификации РГС-25 с зав. №№ 1233, 1234, 1235, 1236, 1237 представлен на рисунке 6.
Эскиз резервуаров стальных горизонтальных цилиндрических РГС, модификации РГС-63 с зав. №№ 1238, 1239 представлен на рисунке 7.
Эскиз резервуара стального горизонтального цилиндрического РГС, модификации РГС-200 с зав. №1240 представлен на рисунке 8.
Место нанесения заводского номера
Место нанесения заводского номера
Место нанесения заводского номера
Рисунок 1 - Фотографии горловин и заводский номеров резервуаров стальных горизонтальных цилиндрических РГС, модификации РГС-25 с зав. №№ 1233, 1234, 1235
Место нанесения заводского номера
Место нанесения заводского номера
Рисунок 2 - Фотографии горловин и заводский номеров резервуаров стальных горизонтальных цилиндрических РГС, модификации РГС-25 с зав. №№ 1236, 1237
Место нанесения заводского номера
Рисунок 3 - Фотография горловины и заводского номера резервуара стального горизонтального цилиндрического РГС, модификации РГС-63 с зав. №1238
Место нанесения заводского номера
Рисунок 4 - Фотография горловины и заводского номера резервуара стального горизонтального цилиндрического РГС, модификации РГС-63 с зав. №1239
Место нанесения заводского номера
Рисунок 5 - Фотография горловины и заводского номера резервуара стального горизонтального цилиндрического РГС, модификации РГС-200 с зав. № 1240
Рисунок 6 - Эскиз резервуаров стальных горизонтальных цилиндрических РГС, модификации
РГС-25 с зав. №№ 1233, 1234, 1235, 1236, 1237
Рисунок 7 - Эскиз резервуаров стальных горизонтальных цилиндрических РГС, модификации РГС-63 с зав. №№ 1238, 1239
Рисунок 8 - Эскиз резервуара стального горизонтального цилиндрического РГС, модификации РГС-200 с зав. №1240
Пломбирование резервуаров стальных горизонтальных цилиндрических РГС
не предусмотрено.
Основные метрологические и технические характеристики резервуаров приведены в таблицах 1, 2 и 3.
Таблица 1 - Основные метрологические характеристики
|
Наименование характеристики |
Значение | |||
|
Модификация |
РГС-25 |
РГС-63 |
РГС-200 | |
|
Номинальная вместимость, м3 |
25 |
63 |
63 |
200 |
|
Заводской номер |
1233 1234 1235 1236 1237 |
1238 |
1239 |
1240 |
|
Пределы допускаемой относительной погрешности определения вместимости резервуаров,% |
± 0,25 | |||
Таблица 2 - Основные технические характеристики
|
Наименование характеристики |
Значение | |||||||
|
Модификация |
РГС-25 |
РГС-63 |
РГС-200 | |||||
|
Заводской номер |
1233 |
1234 |
1235 |
1236 |
1237 |
1238 |
1239 |
1240 |
|
Количество секций, не более |
1 |
1 |
1 |
1 |
1 |
1 |
1 |
1 |
|
Габаритные размеры, мм, не более | ||||||||
|
- диаметр |
2588 |
2588 |
2588 |
2588 |
2588 |
3220 |
3220 |
3710 |
|
- длина |
5945 |
5945 |
5945 |
5945 |
5945 |
9260 |
9260 |
21790 |
|
Масса резервуара, кг не более |
5500 |
5500 |
5500 |
5500 |
5500 |
10500 |
10500 |
33000 |
Таблица 3 - Основные технические характеристики
|
Наименование характеристики |
Значение |
|
Условия эксплуатации для всех модификаций:
|
от - 39 до + 37 от 84,0 до 106,7 |
|
Средний срок службы, лет, не менее |
25 |

