Номер по Госреестру СИ: 94538-25
94538-25 Резервуар горизонтальный стальной цилиндрический
(РГСП-10)
Назначение средства измерений:
Резервуар горизонтальный стальной цилиндрический РГСП-10 (далее - Резервуар) нефти и
предназначен для измерения объема, а также приема, хранения и отпуска нефтепродуктов.

Внешний вид.
Резервуар горизонтальный стальной цилиндрический
Рисунок № 1

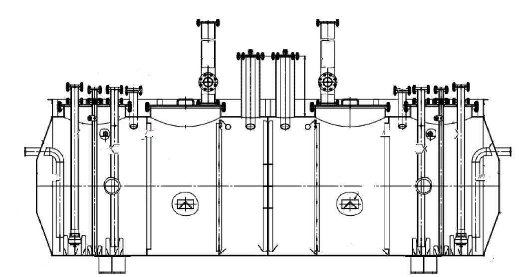
Внешний вид.
Резервуар горизонтальный стальной цилиндрический
Рисунок № 2
Знак утверждения типа
Знак утверждения типананосится на титульный лист паспорта типографским способом.
Сведения о методиках измерений
Сведения о методиках (методах) измерений приведены в разделе 7 паспорта.Нормативные и технические документы
Нормативные документы, устанавливающие требования к средству измеренийПриказ Росстандарта от 26 сентября 2022 г. № 2356 «Об утверждении Государственной поверочной схемы для средств измерений массы и объема жидкости в потоке, объема жидкости и вместимости при статических измерениях, массового и объемного расхода жидкости».
ПравообладательОбщество с ограниченной ответственностью «ДИМИТРОВГРАД-НЕФТЕМАШ»
(ООО «ДИМИТРОВГРАД-НЕФТЕМАШ»)
ИНН 7329018332
Юридический адрес: 433504, Ульяновская обл., г. Димитровград, Промышленная
ул., д. 54б
Испытательный центр
Общество с ограниченной ответственностью фирма «Метролог» (ООО фирма «Метролог»)Юридический адрес: 420029, Республика Татарстан, г. Казань, ул. 8 Марта, д. 13, оф. 33
Адрес местонахождения: 420043, Республика Татарстан, г. Казань, ул. Вишневского, д. 26а, каб. №19
Телефон: +7(843) 245-65-48
E-mail: metrolog-kazan@mail.ru
стальную днищами
Резервуар РГСП-10 и представляет собой двухсекционную
горизонтальную конструкцию цилиндрической формы с усечено-коническими подземного расположения.
Принцип действия резервуара основан на заполнении его нефтью и нефтепродуктом до произвольного уровня, соответствующих определенным объемам (вместимостям), приведенных в градуировочных таблицах секций резервуара.
Резервуар оборудован дыхательным и предохранительным клапанами, замерными люками для эксплуатации и приемо-раздаточными патрубками для приема и отпуска нефти и нефтепродукта.
Заводской номер в виде цифрового обозначения, нанесен на табличку ударным способом.
Нанесение знака поверки и пломбирование резервуара не предусмотрено.
Знак поверки наносится на свидетельство о поверке и градуировочные таблицы.
Резервуар горизонтальный стальной цилиндрический РГСП-10 зав. № 1817
расположен по адресу: Новосибирская область, Искитимский район, ст. Евсино, ул. Пушкина, 2.
Фото таблички с указанием заводского номера и эскиз резервуара приведены на рисунках 1, 2.
Рисунок 1 - фото таблички с указанием зав. номера. резервуара горизонтального стального цилиндрического РГСП-10, зав.№ 1817
Рисунок 2 - Эскиз резервуара горизонтального стального цилиндрического РГСП-10, зав. № 1817
Таблица 3 -
|
Наименование |
Обозначение |
Количество |
|
Резервуар горизонтальный стальной цилиндрический |
РГСП-10 |
1 шт. |
|
Паспорт |
- |
1 экз. |
|
Градуировочная таблица |
- |
1 экз. |
Таблица 1 -
и технические
|
Наименование характеристики |
Значение |
|
Тип резервуара |
РГСП-10 |
|
Номинальная вместимость, м3 |
10 (5/5)1) |
|
Пределы допускаемой относительной погрешности определения вместимости резервуара, (объемный метод) % |
±0,25 |
|
Условия эксплуатации:
|
от -50 до +37 от 84,0 до 106,0 |
|
1) Указана вместимость секций | |
Таблица 2 - Показатели надежности
|
Наименование характеристики |
Значение |
|
Тип резервуара |
РГСП-10 |
|
Средний срок службы, лет, не менее |
25 |

