Номер по Госреестру СИ: 52613-13
52613-13 Комплекты мер моделей дефектов электросварных труб
(МГП-1420)
Назначение средства измерений:
Комплекты мер моделей дефектов электросварных труб МГП-1420 (далее по тексту -комплекты мер) предназначены для поверки и настройки комплексов автоматизированного измерения геометрических параметров электросварных труб и их заготовок «Geom-metric» (далее по тексту - комплексы «Geom-metric») в потоке трубопрокатных станов металлургической промышленности.

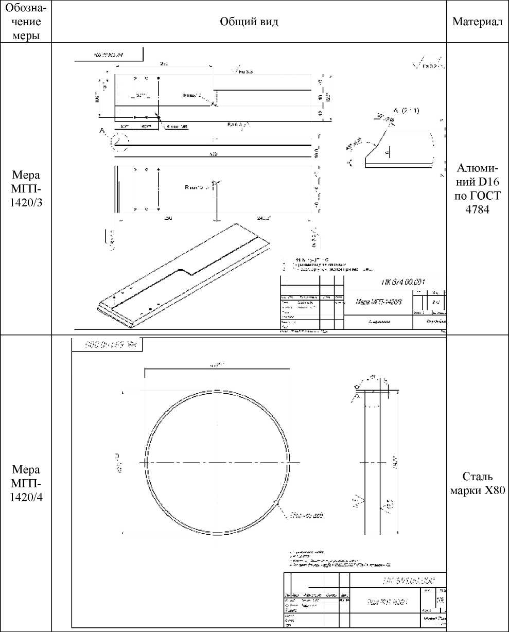
Внешний вид.
Комплекты мер моделей дефектов электросварных труб
Рисунок № 1

Внешний вид.
Комплекты мер моделей дефектов электросварных труб
Рисунок № 2

Внешний вид.
Комплекты мер моделей дефектов электросварных труб
Рисунок № 3
Знак утверждения типа
Знак утверждения типананосится на титульный лист паспорта типографским способом и на каждую меру из комплекта мер рядом с маркировочной надписью методом наклеивания этикетки.
Сведения о методиках измерений
Сведения о методиках (методах) измерений
Сведения о методиках измерений приведены в руководстве по эксплуатации «Комплект мер моделей дефектов электросварных труб МГП-1420. Руководство по эксплуатации НК. 710.00.00.000 РЭ».
Нормативные и технические документы
Нормативные и технические документы, устанавливающие требования к комплекту мер геометрических параметров электросварных труб МГП-14201) ГОСТ 10704-91 «Трубы стальные электросварные прямошовные. Сортамент».
2) ТУ 4276-710-10553510-12. Комплект мер моделей дефектов электросварных труб МГП-1420. Технические условия.
Поверка
Поверкаосуществляется согласно методике поверки, приведенной в приложении А руководства по эксплуатации «Комплект мер моделей дефектов электросварных труб МГП-1420. Руководство по эксплуатации НК. 710.00.00.000 РЭ», утвержденной ГЦИ СИ ФГУП «ВНИИОФИ» в ноябре 2012 г.
Основные средства поверки:
-
1. Рулетка измерительная металлическая по ГОСТ 7502-98. Диапазон измерений от 1 до 20000 мм, Класс точности 2.
-
2. Нутромер микрометрический по ГОСТ 10-88. Диапазон измерений 600 - 2500 мм. Пределы допускаемой погрешности измерения:
в диапазоне от 500 до 800 мм - ± 15 мкм;
в диапазоне от 800 до 1250 мм - ± 20 мкм;
в диапазоне от 1250 до 1600 мм - ± 25 мкм.
-
3. Линейка измерительная металлическая по ГОСТ 427-75. Диапазон измерения от 1 до 150 мм. Пределы допускаемой погрешности измерения ± 0,5 мм.
-
4. Линейка поверочная ШД по ГОСТ 8026-92. Длина 1000 мм. Класс точности 1.
-
5. Набор щупов № 1 по ТУ 3936-214-54769955-2008. Диапазон измерений от 0,02 до 0,54 мм (9 шт.). Класс точности 1. Допускаемые отклонения толщины щупов, не более +3/-1,5 мкм.
-
6. Набор щупов № 2 по ТУ 3936-214-54769955-2008. Диапазон измерений от 0,02 до 3,14 мм (17 шт.). Класс точности 1. Допускаемые отклонения толщины щупов, не более +7/-4 мкм.
-
7. Набор щупов № 3 по ТУ 3936-214-54769955-2008. Диапазон измерений от 0,5 до 8,25 мм (11 шт.). Класс точности 1. Допускаемые отклонения толщины щупов, не более +10/-5 мкм.
-
8. Набор щупов № 4 по ТУ 3936-214-54769955-2008. Диапазон измерений от 0,1 до 5,6 мм (11 шт.). Класс точности 1. Допускаемые отклонения толщины щупов, не более +10/-5 мкм.
-
9. Штангенциркуль цифровой по ГОСТ 166-89. Диапазон измерений 0 - 200 мм. Шаг дискретности цифрового отсчетного устройства 0,01 мм. Пределы допускаемой погрешности измерения ± 0,03 мм.
-
10. Штангенциркуль типа ШЦ по ГОСТ 166-89. Диапазон измерений 0 - 400 мм. Значение отсчета по нониусу 0,05 мм. Пределы допускаемой погрешности измерения ± 0,05 мм.
-
11. Индикатор часового типа с ценой деления 0,01 мм по ГОСТ 577-68. Диапазон измерений 0 - 10 мм. Пределы допускаемой погрешности измерения ± 0,015 мм.
-
12. Угломер типа 4 по ГОСТ 5378-88. Диапазон измерений наружных углов 0 - 180°. Пределы допускаемой погрешности измерения ± 10'
-
13. Угломер типа 2 по ГОСТ 5378-88. Диапазон измерений наружных углов 0 - 360° Диапазон измерений внутренних углов 40 - 180°. Пределы допускаемой погрешности измерения ± 2'.
-
14. Угольник типа УШ по ГОСТ 3749-77. Класс точности 1.
-
15. Толщиномер ультразвуковой. Диапазон измерения 5 - 50 мм. Разрешающая способность 0,01 мм. Пределы допускаемой погрешности измерения ± 0,01 мм.
Изготовитель
Общество с ограниченной ответственностью «Компания «Нординкрафт»(ООО «Компания «Нординкрафт»), Россия
Адрес: 162626, г. Череповец, ул. Годовикова, д. 12
Тел./факс: (8202) 31-30-09
E-mail: tech@nordinkraft.com, www.nordinkraft.com
Испытательный центр
Государственный центр испытаний средств измерений федерального государственного унитарного предприятия «Всероссийский научно-исследовательский институт оптикофизических измерений» (ГЦИ СИ ФГУП "ВНИИОФИ"), аттестат аккредитации (Госреестр №30003-08) от 30.12.2008 г.Адрес: 119361, г. Москва, ул. Озерная, 46.
Телефон: (495) 437-56-33, факс: (495) 437-31-47
E-mail: vniiofi@vniiofi.ru
Принцип действия основан на воспроизведении заданных отклонений формы электросварных труб.
Комплект мер состоит из 4-х мер: МГП-1420/1, МГП-1420/2, МГП-1420/3, МГП-1420/4.
Мера МГП-1420/1 представляет собой образец стальной прямошовной электросварной трубы, выполненной по ГОСТ 10704-91 из труб текущего сортамента каждого предприятия и служит для проведения поверки всех подсистем комплексов «Geom-metric».
Мера МГП-1420/2 представляет собой модель электросварного шва и служит для поверки и настройки подсистем автоматизированного измерения геометрических параметров сварного шва и положения свариваемых кромок электросварных труб и их заготовок комплексов «Geom-metric».
Мера МГП-1420/3 представляет собой модель фаски конца трубы и служит для поверки и настройки подсистем автоматизированного измерения геометрических параметров концов труб комплексов «Geom-metric».
Мера МГП-1420/4 является моделью трубы, представляет собой кольцо с известными значениями периметра и овальности и служит для настройки подсистем автоматизированного измерения геометрических параметров тела электросварных труб и их заготовок комплексов «Geom-metric».
Мера МГП-1420/2, предназначенная для поверки характеристики измерения подрезов комплексами «Geom-metric», и мера МГП-1420/3, предназначенная для поверки характеристики измерения углов двухугловой фаски комплексами «Geom-metric», применяются при поверке комплексов «Geom-metric», только если указанные характеристики не могут быть поверены на мере МГП-1420/1.
Общий вид мер приведен в таблице 1.
Таблица
Обозначение меры
Общий вид
Материал
Ме-раМГП-1420/1

Изготавливается из труб текущего сортамента каждого предприятия
Мера
МГП-
1420/2

Алюминий D16 по ГОСТ 4784
Геометрические размеры меры МГП-1420/1 зависят от сортамента конкретного предприятия.
Меры МГП-1420/2, МГП-1420/3, МГП-1420/4 имеют постоянные фиксированные геометрические размеры.
Комплект поставки приведен в таблице 3.
Таблица 3.
|
Наименование |
Количество |
|
Меры из комплекта мер моделей дефектов электросварных труб МГП-1420 |
4 шт. |
|
Наименование |
Количество |
|
Комплект мер моделей дефектов электросварных труб МГП-1420. Руководство по эксплуатации НК. 710.00.00.000 РЭ (Приложение А - методика поверки) |
1 экз. |
|
Комплект мер моделей дефектов электросварных труб МГП-1420. Паспорт |
1 экз. |
Таблица 2.1
Мера МГП-1420/1
|
Наименование параметра |
Значение |
Пределы доверительной границы погрешности измерения при Р=0,95 |
|
Наружный диаметр корпуса трубы, мм |
500 - 1430 |
± 0,50 |
|
Овальность трубы, мм |
0,1 - 4,0 |
± 0,20 |
|
Общая кривизна трубы, мм |
0 - 100 |
± 0,30 |
|
Кривизна на участке меры длиной 1м, мм |
0 - 2 |
± 0,05 |
|
Отклонение от прямолинейности концов трубы на длине 500 мм |
0 - 0,5 |
± 0,05 |
|
Смещение свариваемых кромок относительно друг дру га, мм |
0 - 10 |
± 0,10 |
|
Отклонение от теоретической окружности - локальное отклонение от формы окружности, мм |
± (0 - 5) |
± 0,15 |
|
Отклонение трубы от номинальной цилиндрической формы, мм |
0 - 10 |
± 0,15 |
|
Длина трубы, мм |
9500 - 18500 |
± 2,0 |
|
Высота усиления наружного шва, мм |
0 - 10 |
± 0,10 |
|
Ширина усиления наружного шва, мм |
0 - 50 |
± 0,50 |
|
Подрезы, мм |
0 - 5 |
± 0,15 |
|
Угол фаски |
(0 - 40)° |
± 0°10' |
|
Углы двухугловой фаски
|
(0 - 30)° (0 - 45)° |
± 0°15' ± 0°15' |
|
Величина притупления фаски, мм |
0 - 50 |
± 0,15 |
|
Косина реза, мм |
0 - 5 |
± 0,10 |
|
Длина концевых участков без наружного шва, мм |
0 - 370 |
± 0,20 |
|
Высота усиления без наружного шва, мм |
0 - 5 |
± 0,10 |
|
Длина концевых участков без внутреннего шва, мм |
0 - 370 |
± 0,20 |
|
Высота усиления без внутреннего шва, мм |
0 - 5 |
± 0,10 |
|
Толщина стенки, мм |
5 - 50 |
± 0,05 |
|
Смещение осей сварных швов (наружный относительно внутреннего), мм |
0 - 10 |
± 0,05 |
|
Масса, кг |
580 - 31500 |
- |
Таблица 2.2
Мера МГП-1420/2
|
Наименование параметра |
Значение |
Предельное отклонение от номинального значения |
Пределы доверительной границы погрешности измерения при Р=0,95 |
|
1 |
2 |
3 |
4 |
|
Смещение свариваемых кромок относительно друг друга, мм |
3,0 |
± 0,20 |
± 0,10 |
|
Отклонение от теоретической окружности - локальное отклонение от формы окружности, мм |
2,0 |
± 0,15 |
± 0,15 |
|
Высота усиления наружного шва, мм |
5,0 |
± 0,10 |
± 0,10 |
|
Ширина усиления наружного шва, мм |
25,0 |
± 0,30 |
± 0,30 |
|
1 |
2 |
3 |
4 |
|
Подрезы, мм |
2,0 |
± 0,15 |
± 0,15 |
|
Масса, кг, не более |
2,4 |
- |
- |
|
Г абаритные размеры (длина х ширина х высота), мм, не более |
337х100х42 |
- |
- |
Таблица 2.3
Мера МГП-1420/3
|
Наименование параметра |
Значение |
Предельное отклонение от номинального значения |
Пределы доверительной границы погрешности измерения при Р=0,95 |
|
Углы двухугловой фаски - первый угол |
30° |
± 0°25' |
± 0°15' |
|
- второй угол |
45° |
± 0°25' |
± 0°15' |
|
Величина притупления фаски, мм |
3,0 |
± 0,10 |
± 0,10 |
|
Длина концевых участков без внутреннего |
250,0 |
± 0,50 |
± 0,05 |
|
шва, мм | |||
|
Длина концевых участков без наружного |
250,0 |
± 0,50 |
± 0,05 |
|
шва, мм | |||
|
Толщина стенки, мм |
18,8 |
± 0,05 |
± 0,05 |
|
Масса, кг, не более |
2,7 |
- |
- |
|
Габаритные размеры (длина х ширина х высота), мм, не более |
500х120х18,8 |
- |
- |
Таблица 2.4
Мера МГП-1420/4
|
Наименование параметра |
Значение |
Предельное отклонение от номинального значения |
Пределы доверительной границы погрешности измерения при Р=0,95 |
|
Наружный диаметр трубы, мм |
1427,5 - 1433 |
- |
± 0,50 |
|
Овальность трубы, мм |
5,5 |
± 0,25 |
± 0,20 |
|
Масса, кг, не более |
120,0 |
- |
- |
|
Габаритные размеры (диаметр х длина), не более, мм |
1433х150 |
- |
- |
Условия эксплуатации комплектов мер:
от +15 до +25
от 45 до 80 от 84 до 106,7
- температура окружающего воздуха , °С
- относительная влажность, при температуре +20 °С, %
- атмосферное давление , кПа
Полный срок службы - не менее 10 лет.

