Номер по Госреестру СИ: 96965-25
96965-25 Резервуар горизонтальный стальной цилиндрический
(РГС 10.5.2100.16406)
Назначение средства измерений:
Резервуар горизонтальный стальной цилиндрический РГС 10.5.2100.16406 (далее -резервуар) предназначен для измерений объема нефтепродуктов, а также для их приема, хранения и отпуска.

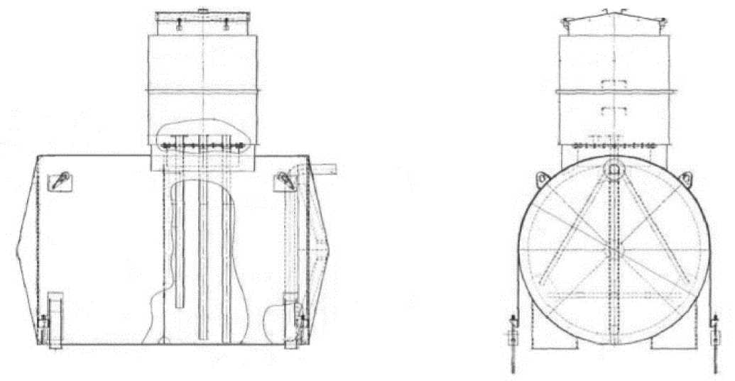
Внешний вид.
Резервуар горизонтальный стальной цилиндрический
Рисунок № 1

Внешний вид.
Резервуар горизонтальный стальной цилиндрический
Рисунок № 2
Знак утверждения типа
Знак утверждения типананосится на титульный лист паспорта резервуара типографским способом.
Сведения о методиках измерений
Сведения о методиках (методах) измерений приведены в пункте 8 паспорта на резервуар.Нормативные и технические документы
Нормативные документы, устанавливающие требования к средству измеренийПриказ Росстандарта от 26 сентября 2022 г. № 2356 «Об утверждении Государственной поверочной схемы для средств измерений массы и объема жидкости в потоке, объема жидкости и вместимости при статических измерениях, массового и объемного расходов жидкости»
ПравообладательОбщество с ограниченной ответственностью «ЭЛЕМЕНТ»
(ООО «ЭЛЕМЕНТ»)
ИНН 9709045791
Юридический адрес: 109004, г. Москва, вн. тер. г. Муниципальный округ Таганский, пер. Шелапутинский, д.1, помещ. 1Б
Изготовитель
Общество с ограниченной ответственностью «ЭЛЕМЕНТ»(ООО «ЭЛЕМЕНТ»)
ИНН 9709045791
Адрес места осуществления деятельности: 141602, Московская область, г. Клин, ул. Терешковой, д. 48, стр. 2.
Юридический адрес: 109004, г. Москва, вн. тер. г. Муниципальный округ Таганский, пер. Шелапутинский, д.1, помещ. 1Б
Испытательный центр
Общество с ограниченной ответственностью «МетроКонТ» (ООО «МетроКонТ»)Адрес места осуществления деятельности: 420036, Республика Татарстан, г. Казань, ул. Тэцевская, д. 4б, помещ. 1011
Юридический адрес: 420132, Республика Татарстан, г. Казань, ул. Адоратского, д. 39Б, офис 51
Телефон: +7 9196969693
E-mail: trifonovua@mail.ru
Тип резервуара - горизонтальный стальной цилиндрический, номинальной вместимостью 10 м3 подземного расположения.
Принцип действия резервуара основан на заполнении его нефтепродуктом до определенного уровня, соответствующего заданному значению объема.
Резервуар представляет собой горизонтально расположенный цилиндрический стальной сосуд с днищами.
Заполнение и выдача продукта осуществляется через приемно-раздаточные патрубки.
Заводской номер резервуара в виде цифрового обозначения, состоящий из арабских цифр, нанесен типографским способом на информационную табличку резервуара. Табличка крепится к люку резервуара.
Резервуар РГС 10.5.2100.16406 с заводским номером 31 расположен по адресу: Республики Саха (Якутия), г. Тикси, ул. Трусова, д. 22.
Эскиз общего вида резервуара приведен на рисунке 1. Фотография горловины приведена на рисунке 2.
Нанесение знака поверки на средство измерений не предусмотрено.
Рисунок 1 - Эскиз общего вида резервуара
Рисунок 2 - Горловина резервуара РГС 10.5.2100.16406 зав.№ 31
Пломбирование резервуара РГС 10.5.2100.16406 не предусмотрено.
Таблица 4 -
|
Наименование |
Обозначение |
Количество |
|
Резервуар горизонтальный стальной цилиндрический |
РГС 10.5.2100.16406 |
1 шт. |
|
Паспорт |
- |
1 экз. |
|
Градуировочная таблица |
- |
1 экз. |
Таблица 1 - Метрологические характеристики
|
Наименование характеристики |
Значение |
|
Номинальная вместимость, м3 |
10 |
|
Пределы допускаемой относительной погрешности определения вместимости, % |
±0,25 |
Таблица 2 - Технические характеристики
|
Наименование характеристики |
Значение |
|
Условия эксплуатации: Температура окружающего воздуха, оС Атмосферное давление, кПа |
от -40 до +40 от 84,0 до 106,7 |
Таблица 3 - Показатели надежности
|
Наименование характеристики |
Значение |
|
Средний срок службы, лет, не менее |
20 |

