Номер по Госреестру СИ: 96153-25
96153-25 Резервуар горизонтальный стальной двустенный
(РГСД-25)
Назначение средства измерений:
Резервуар горизонтальный стальной двустенный РГСД-25 (далее - резервуар) предназначен для измерений объема нефти и нефтепродуктов, а также для их приема, хранения и отпуска.

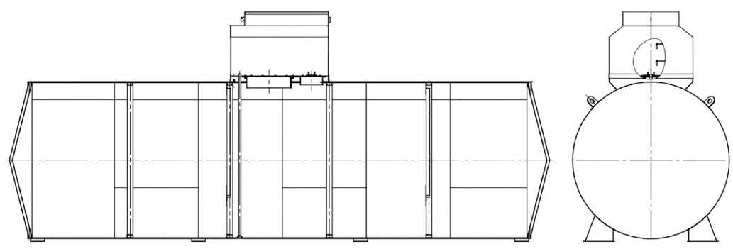
Внешний вид.
Резервуар горизонтальный стальной двустенный
Рисунок № 1

Внешний вид.
Резервуар горизонтальный стальной двустенный
Рисунок № 2
Знак утверждения типа
Знак утверждения типананосится на титульный лист паспорта резервуара типографским способом.
Сведения о методиках измерений
Сведения о методиках (методах) измерений приведены в пункте 8 паспорта на резервуар.Нормативные и технические документы
Нормативные документы, устанавливающие требования к средству измеренийПриказ Росстандарта от 26 сентября 2022 г. № 2356 «Об утверждении Государственной поверочной схемы для средств измерений массы и объема жидкости в потоке, объема жидкости и вместимости при статических измерениях, массового и объемного расходов жидкости».
ПравообладательОбщество с ограниченной ответственностью «Техмонтажспецстрой»
(ООО «Техмонтажспецстрой»)
ИНН 2632065302
Юридический адрес: 357500, Ставропольский край, г. Пятигорск, ул. Орджоникидзе,
д.11 к.2
Испытательный центр
Общество с ограниченной ответственностью «МетроКонТ» (ООО «МетроКонТ»)Адрес места осуществления деятельности: 420036, Республика Татарстан, г. Казань, ул. Тэцевская, д. 4б, пом. 1011
Юридический адрес: 420132, Республика Татарстан, г. Казань, ул. Адоратского, д. 39Б, офис 51
Телефон: +7 9196969693
E-mail: trifonovua@mail.ru
Тип резервуара - горизонтальный стальной двустенный, номинальной вместимостью 25 м3 подземного расположения.
Принцип действия резервуара основан на заполнении его нефтью или нефтепродуктом до определенного уровня, соответствующего заданному значению объема.
Резервуар представляет собой горизонтально расположенный цилиндрический стальной двустенный сосуд с днищами.
Заполнение и выдача продукта осуществляется через приемно-раздаточные патрубки.
Заводской номер резервуара в виде цифрового обозначения, состоящий из арабских цифр, нанесен типографским способом на табличку резервуара. Табличка крепится к люку резервуара.
Резервуар РГСД-25 с заводским номером 379 расположен по адресу: Республика Южная Осетия, нп Знаур.
Эскиз общего вида резервуара приведен на рисунке 1. Фотография горловины и измерительного люка приведена на рисунке 2.
Нанесение знака поверки на средство измерений не предусмотрено.
Рисунок 1 - Эскиз общего вида резервуара
Рисунок 2 - Горловина и измерительный люк резервуара
РГСД-25 зав.№ 379
Пломбирование резервуара РГСД-25 не предусмотрено.
Таблица 4 -
|
Наименование |
Обозначение |
Количество |
|
Резервуар горизонтальный стальной двустенный |
РГСД-25 |
1 шт. |
|
Паспорт |
- |
1 экз. |
|
Градуировочная таблица |
- |
1 экз. |
Таблица 1 - Метрологические характеристики
|
Наименование характеристики |
Значение |
|
Номинальная вместимость, м3 |
25 |
|
Пределы допускаемой относительной погрешности определения вместимости (объемный метод), % |
±0,25 |
Таблица 2 - Технические характеристики
|
Наименование характеристики |
Значение |
|
Условия эксплуатации: Температура окружающего воздуха, оС Атмосферное давление, кПа |
от -50 до +50 от 84,0 до 106,7 |
Таблица 3 - Показатели надежности
|
Наименование характеристики |
Значение |
|
Средний срок службы, лет, не менее |
20 |

