Номер по Госреестру СИ: 93575-24
93575-24 Резервуары горизонтальные стальные цилиндрические
(РГП 25-1-2(0, 85)-О-У)
Назначение средства измерений:
Резервуары горизонтальные стальные цилиндрические РГП 25-1-2(0,85)-О-У (далее - резервуары) предназначены для измерений объема нефти и нефтепродуктов, а также для их приема, хранения и отпуска.

Внешний вид.
Резервуары горизонтальные стальные цилиндрические
Рисунок № 1

Внешний вид.
Резервуары горизонтальные стальные цилиндрические
Рисунок № 2

Внешний вид.
Резервуары горизонтальные стальные цилиндрические
Рисунок № 3

Внешний вид.
Резервуары горизонтальные стальные цилиндрические
Рисунок № 4

Внешний вид.
Резервуары горизонтальные стальные цилиндрические
Рисунок № 5

Внешний вид.
Резервуары горизонтальные стальные цилиндрические
Рисунок № 6

Внешний вид.
Резервуары горизонтальные стальные цилиндрические
Рисунок № 7

Внешний вид.
Резервуары горизонтальные стальные цилиндрические
Рисунок № 8

Внешний вид.
Резервуары горизонтальные стальные цилиндрические
Рисунок № 9
Знак утверждения типа
Знак утверждения типананосится на титульный лист паспорта резервуара типографским способом.
Сведения о методиках измерений
Сведения о методиках (методах) измерений приведены в пункте 8 паспорта на резервуар.
Нормативные и технические документы
Нормативные документы, устанавливающие требования
Приказ Федерального агентства по техническому регулированию и метрологии от 26 сентября 2022 г. № 2356 «Об утверждении Государственной поверочной схемы для средств измерений массы и объема жидкости в потоке, объема жидкости и вместимости при статических измерениях, массового и объемного расходов жидкости».
ПравообладательОбщество с ограниченной ответственностью «Углерод» (ООО «Углерод»)
ИНН 6147021593
Юридический адрес: 347830, Ростовская обл., Каменский р-н, х. Старая Станица, ул. Железнодорожная, д. 1
Испытательный центр
Общество с ограниченной ответственностью «МетроКонТ» (ООО «МетроКонТ») Юридический адрес: 420132, Республика Татарстан, г. Казань, ул. Адоратского, д. 39Б, оф. 51Адрес места осуществления деятельности: 420036, Республика Татарстан, г. Казань, ул. Тэцевская, д. 4б, помещ. 1011
Телефон: +7 9196969693
E-mail: trifonovua@mail.ru
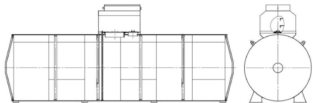
Тип резервуаров - горизонтальные стальные цилиндрические, номинальной вместимостью 25 м3 подземного расположения.
Принцип действия резервуаров основан на заполнении их нефтью или нефтепродуктом до определенного уровня, соответствующего заданному значению объема.
Резервуары представляют собой горизонтально расположенный цилиндрический стальной сосуд с днищами.
Заполнение и выдача продукта осуществляется через приемно-раздаточные патрубки.
состоящие резервуара.
Заводские номера резервуаров в виде цифрового обозначения, из арабских цифр, нанесены ударным способом на маркировочную табличку Маркировочная табличка крепится к корпусу резервуара.
0230, 0231,
Резервуары РГП 25-1-2(0,85)-О-У с заводскими номерами 0228, 0229, 0236, 0237, 0237/2, 0238 расположены по адресу: Республика Южная Осетия, нп Ахмадз.
Эскиз общего вида резервуаров приведен на рисунке 1. Фотографии горловин и измерительных люков приведены на рисунках 2, 3, 4, 5, 6, 7, 8, 9.
Нанесение знака поверки на средство измерений не предусмотрено.
Рисунок 1 - Эскиз общего вида резервуаров
Место нанесения
заводского номера
Рисунок 2 - Горловина и измерительный люк резервуара РГП 25-1-2(0,85)-О-У зав.№ 0228
Рисунок 3 - Горловина и измерительный люк резервуара РГП 25-1-2(0,85)-О-У зав.№ 0229
Место нанесения заводского номера
Рисунок 4 - Горловина и измерительный люк резервуара РГП 25-1-2(0,85)-О-У зав.№ 0230
Место нанесения заводского номера
Место нанесения заводскою номера
и измерительный люк резервуара РГП 25-1-2(0,85)-О-У зав.№ 0231
Рисунок 5 - Горловина

Место нанесения заводского номера
Рисунок 6 - Горловина
и измерительный люк резервуара РГП 25-1-2(0,85)-О-У зав.№ 0236
Мссю uaiiccciuiH заводского номера
Рисунок 7 - Горловина и измерительный люк резервуара
РГП 25-1-2(0,85)-О-У зав.№ 0237
Рисунок 8 - Горловина и измерительный люк резервуара РГП 25-1-2(0,85)-О-У зав.№ 0237/2
Место нанесения заводского номера
Рисунок 9 - Горловина и измерительный люк резервуара РГП 25-1-2(0,85)-О-У зав.№ 0238
Место нанесения заводского номера
Пломбирование резервуаров РГП 25-1-2(0,85)-О-У не предусмотрено.
Таблица 4 -
|
Наименование |
Обозначение |
Количество |
|
Резервуар горизонтальный стальной цилиндрический |
РГП 25-1-2(0,85)-О-У |
1 шт. |
|
Паспорт |
- |
1 экз. |
|
Градуировочная таблица |
- |
1 экз. |
Таблица 1 - Метрологические характеристики
|
Наименование характеристики |
Значение |
|
Номинальная вместимость, м3 |
25 |
|
Пределы допускаемой относительной погрешности определения вместимости (объемный метод), % |
±0,25 |
Таблица 2 - Технические характеристики
|
Наименование характеристики |
Значение |
|
Условия эксплуатации: Температура окружающего воздуха, оС Атмосферное давление, кПа |
от -50 до +50 от 84,0 до 106,7 |
Таблица 3 - Показатели надежности
|
Наименование характеристики |
Значение |
|
Средний срок службы, лет, не менее |
10 |

