Номер по Госреестру СИ: 79952-20
79952-20 Резервуары горизонтальные стальные цилиндрические
(РГС-25)
Назначение средства измерений:
Резервуары горизонтальные стальные цилиндрические РГС -25 (далее - резервуары) предназначены для измерения объема, а также приема, хранения и отпуска нефти и нефтепродуктов.

Внешний вид.
Резервуары горизонтальные стальные цилиндрические
Рисунок № 1

Внешний вид.
Резервуары горизонтальные стальные цилиндрические
Рисунок № 2

Внешний вид.
Резервуары горизонтальные стальные цилиндрические
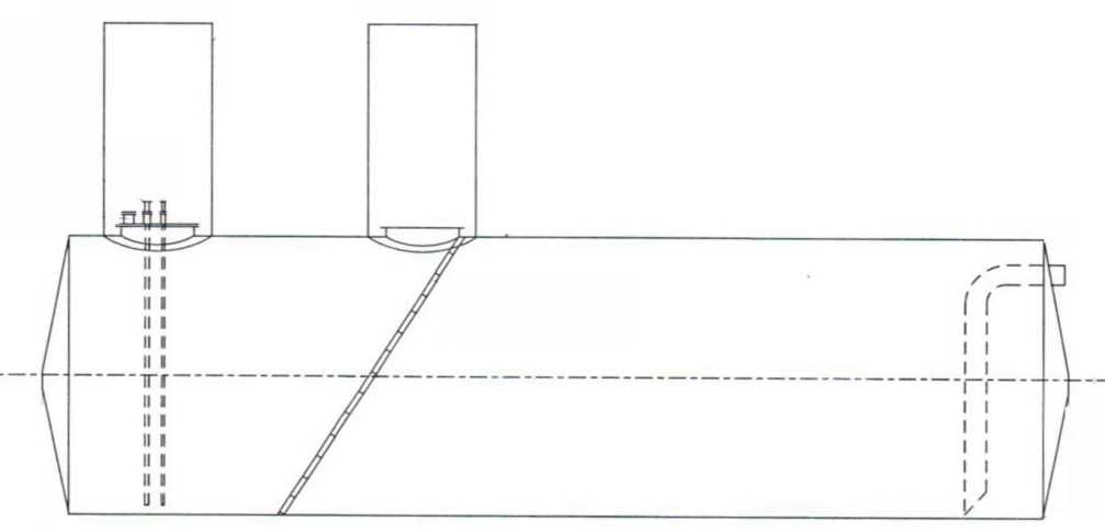
Рисунок № 3
Знак утверждения типа
Знак утверждения типананосится на титульные листы паспортов типографским способом.
Сведения о методиках измерений
Сведения о методиках (методах) измеренийсведения отсутствуют.
Нормативные и технические документы
Нормативные документы, устанавливающие требования к резервуарам горизонтальным стальным цилиндрическим РГС-24ГОСТ 8.346-2000 Государственная система обеспечения единства измерений. Резервуары стальные горизонтальные цилиндрические. Методика поверки
ГОСТ 17032-2010 Резервуары стальные горизонтальные для нефтепродуктов
Поверка
Поверкаосуществляется по документу ГОСТ 8.346-2000 «Государственная система обеспечения единства измерений. Резервуары стальные горизонтальные цилиндрические. Методика поверки» объемным методом.
Основные средства поверки:
-
- расходомер жидкости турбинный PTF 040, (4,0-40) м3/ч, ПГ ± 0,15 % (рег. №11735-00);
-
- уровнемер «Струна-М» от 0 до 4000 мм, ПГ ± 1 мм (рег.№ 15669-02);
-
- термометр ртутный стеклянный лабораторный ТЛ-4, (0-55) °С, ЦД 0,1°С (рег.№ 303-91);
-
- манометр деформационный образцовый с условной шкалой МО, (0-25) кгс/см2, КТ 0,25 (рег.№ 5768-76);
-
- ареометр стеклянный АНТ-1, ЦД 0,5 кг/м3 (рег.№ 37028-08);
-
- секундомер механический СОПпр; (0-60) мин; ЦД 0,2 с (рег. № 11519-11).
Допускается применение аналогичных средств поверки, обеспечивающих определение метрологических характеристик поверяемых СИ с требуемой точностью.
Знак поверки наносится на свидетельства о поверке и градуировочные таблицы.
Изготовитель
Акционерное общество (АО) «Транснефть-Сибирь»ИНН: 7201000726
Адрес: 625027, г. Тюмень, ул. Республики, 139
Телефон: +7 (3452) 322-710
E-mail: info@sibnefteprovod.ru
Web-сайт: https://siberia.transneft.ru/
Испытательный центр
Общество с ограниченной ответственностью фирма «Метролог» (ООО фирма «Метролог»)Адрес: 420029, РТ, г. Казань, ул. 8 Марта, д.13, офис 33
Телефон/факс: +7(843) 513-30-75
Web-сайт: www.metrolog-kazan.ru
E-mail: metrolog-kazan-ut@mail.ru
Принцип действия резервуаров основан на заполнении их нефтепродуктом до определенного уровня, соответствующего объему согласно градуировочным таблицам резервуаров.
Резервуары представляют стальные горизонтальные конструкции цилиндрической формы с коническими днищами.
Тип размещения резервуаров - подземный.
Резервуары оборудованы дыхательным и предохранительным клапанами, люком замерным для эксплуатации и приемо-раздаточными патрубками для приема и отпуска нефти и нефтепродукта.
Резервуары горизонтальные стальные цилиндрические РГС-25 расположены на территории резервуарного парка Акционерного общества (АО) «Транснефть -Сибирь», ЛДПС «Южный Балык», филиала «Нефтеюганское УМН» по адресу: ХМАО, Нефтеюганский р -н, п. Сентябрьский
Общий вид и эскиз резервуаров горизонтальных стальных цилиндрических РГС-25 зав.№№ 1, 2 представлены на рисунках 1-3.
Рисунок 1 - Общий вид резервуара РГС-25 зав.№ 1
Рисунок 2 - Общий вид резервуара РГС -25 зав.№ 2
Рисунок 3 - Эскиз резервуаров РГС-25 зав.№№ 1, 2
Пломбирование резервуаров горизонтальных стальных цилиндрических РГС-25 не предусмотрено.
Таблица 1 -
|
Наименование характеристики |
Значение |
|
Тип резервуара |
РГС-25 |
|
Номинальная вместимость, м3 |
25 |
|
Заводской номер |
1 2 |
|
Пределы допускаемой относительной погрешности определения вместимости резервуара (объемный метод), % |
±0,25 |
|
Средний срок службы, лет, не менее |
30 |
|
Условия эксплуатации:
|
От м и ну с 5 0 до плюс 50 от 84,0 до 106,7 |

